ARCHITEKTURLEISTUNGEN » Bestandsaufnahme


Bestandsaufnahme

 

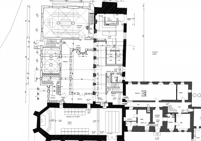
Wenn Sie von Ihrem Gebäude keine Pläne besitzen können Grundrisse und Ansichten aufgenommen und dokumentiert werden auf Papier und als digitale Daten zur weiteren Verarbeitung. Eine Bestandsaufnahme ist notwendig, wenn keine Pläne vorliegen und eine bauliche Veränderung geplant ist. Ebenso kann eine Bestandsaufnahme notwendig werden, wenn sich herausstellt, dass eine nachträgliche Baugenehmigung notwendig wird für ungenehmigt errichtete Gebäude.

Architekt Dipl.-Ing. Bernhard Haaß